Property Image 1
1/4
£350K
Size not specified

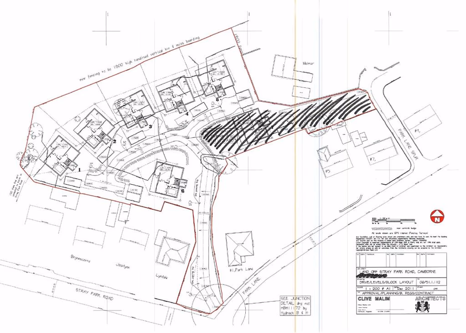
Land in Stray Park Road for Sale - £349,950

Size not specified
fields
available
freehold

Description

Calling all Investment Buyers and Developers - a rare opportunity to acquire an individual site, located on the outskirts of Camborne. To view associated documents and plans, please contact the office to arrange an appointment.

Contact Agent

Your Move Sales, Camborne

Location

Stray Park Road

Land in Stray Park Road for Sale - £349,950 - £350K | Fields for Sale